喜報——廣西都安雙HZS240混凝土攪拌站在我公司成功訂購
廣西都安韋總,藍總經過半年的考察,在我公司訂購了兩套HZS混凝土攪拌站


【產品介紹】:HZS90/2HZS90混凝土攪拌站在混凝土攪拌站上不斷創新的設計理念,為需要轉場生產的混凝土生產企業提供了便利,廣泛應用于城市建設商品混凝土攪拌站,高鐵專用混凝土攪拌站、高速專用混凝土攪拌站、工程混凝土攪拌站。

一、聯源HZS90/2HZS90型混凝土攪拌站簡介:
HZS90/2HZS90混凝土攪拌站在混凝土攪拌站上不斷創新的設計理念,為需要轉場生產的混凝土生產企業提供了便利,廣泛應用于城市建設商品混凝土攪拌站,高鐵專用混凝土攪拌站、高速專用混凝土攪拌站、工程混凝土攪拌站。
HZS90混凝土攪拌站配套及技術特點:由輸送帶、水泥倉|水泥罐、螺旋輸送機、PLD配料機、雙臥軸攪拌主機、智能電腦控制室及計量系統等構件組成。
根據客戶實際需求HZS90型混凝土攪拌站理論生產率為90?/h,2HZS90型混凝土攪拌站理論生產率為180?/h。
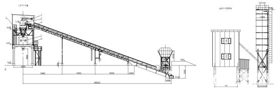
二、聯源HZS90/2HZS90型混凝土攪拌站布置圖:
三、聯源HZS90/2HZS90混凝土攪拌站主要用途:
HZS90混凝土攪拌站適用于各種預拌混凝土的生產,如城市商品混凝土、水利、電站、鐵路、公路、隧道、橋梁、機場,建筑工地等混凝土的生產。在南水北調上應該了30多套HZS90混凝土攪拌站設備,為我國南水北調事業,做出了特殊的貢獻。
四、聯源HZS90/2HZS90混凝土攪拌站技術參數:
|
型號 |
HZS60 |
HZS90 |
HZS120 |
HZS180 |
HZS240 |
|
|
生產率(m3/h) |
60 |
90 |
120 |
180 |
240 |
|
|
攪拌主機 |
型號 |
JS1000 |
JS1500 |
JS2000 |
JS3000 |
JS4000 |
|
攪拌功率(kW) |
2×22 |
2×30 |
2×37 |
2×55 |
2×75 |
|
|
出料容量(m3) |
1 |
1.5 |
2 |
3 |
4 |
|
|
骨料粒徑(mm) |
≤60 |
≤80 |
≤120 |
≤150 |
≤150 |
|
|
配料倉 |
倉容積(m3) |
3×13 |
3×13 |
3×13 |
4×20 |
4×20 |
|
倉格數 |
3 |
3 |
3 |
4 |
4 |
|
|
皮帶機輸送能力(t/h) |
200 |
200 |
300 |
400 |
600 |
|
|
稱量范圍及精度 |
骨料(kg) |
2500±2% |
3500±2% |
4500±2% |
6500±2% |
9000±2% |
|
水泥(kg) |
600±1% |
900±1% |
1200±1% |
1800±1% |
2400±1% |
|
|
粉煤灰(kg) |
200±1% |
300±1% |
400±1% |
600±1% |
800±1% |
|
|
水(kg) |
300±1% |
400±1% |
600±1% |
800±1% |
1000±1% |
|
|
外加劑(kg) |
10±1% |
30±1% |
30±1% |
50±1% |
50±1% |
|
|
總功率(kW) |
82 |
108 |
127 |
178 |
220 |
|
|
卸料高度(m) |
3.8 |
3.8 |
3.8 |
3.8 |
3.8 |
|
五、選擇聯源HZS90/2HZS90混凝土攪拌站的一萬個理由:
HZS90混凝土攪拌站的攪拌主機可配JS雙臥軸強制式混凝土攪拌機或進口混凝土攪拌主機。主機配有收塵機,具有自動收塵、去濕、排風、將收集的粉塵向主機回送再利用的功能。收塵效果佳。水泥倉頂部裝有圓筒式收塵機,噪音低。主機架采用彩鋼板包裝,整潔、美觀、防塵,具有良好的視野。雙帖合并安裝,既方便操作又節約場地。
HZS90混凝土攪拌站,該型號設備的理論生產率每小時90立方米;攪拌主機為JS1500型強制式攪拌機,公稱容量為1500L;配料機的配料能力為1600L,螺旋輸送機大生產率80t/h,骨料大顆粒直徑為80mm;水泥稱量范圍及精度(0~900)±1%kg,外加劑稱量范圍及精度(0~50)±1%kg,骨料稱量范圍及精度為0×5000±2%,HZS90商品混凝土攪拌站-卸料高度 也是3.8米,可適當增減高度,以滿足卸料輸送需求。標配參考總重量97×103kg,需要牢固的基地穩固攪拌站。
112020-06
廣西都安韋總,藍總經過半年的考察,在我公司訂購了兩套HZS混凝土攪拌站
262019-06
我公司再內蒙古興建的年產20萬噸干粉砂漿線項目落成,準備投產。
212019-04
隨著行業日趨激烈的競爭和高壓下的市場狀態,攪拌站企業越來越難做,那么怎么再逆勢行情中生存,發展呢?一個詞高標準。
如果您有任何疑問或需求,您可將其填寫在下面的表單中。我們會根據您留下的聯系方式及時與您聯系。(備注:聯系方式和需求為必填項)